當前位置:首頁 >> 產品中心 >> 防爆型天然氣、乙炔氣電加熱器

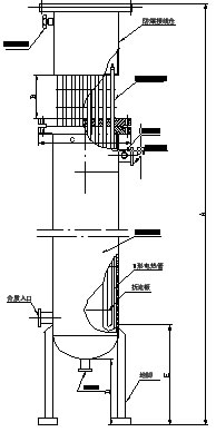
防爆型氣體電加熱器主要是對天然氣、氫氣、乙炔氣這些易燃易爆氣體進行加熱。通過電加熱能有效地解決天然氣、石油等介質,將液態轉化為氣態或高壓力轉變為低壓力等技術問題。

機械規格參數表(立式):
|
防爆等級
|
標稱
功率
|
A1
|
B2
|
C
|
D
|
E
|
估重
(kg)
|
|||
|
HYLQ-L-10
|
DIIBT1-4~dIICT1-6
|
10
|
2600
|
200
|
DN150
|
350
|
500
|
160
|
|||
|
HYLQ-L-30
|
DIIBT1-4~dIICT1-6
|
30
|
2600
|
200
|
DN200
|
350
|
500
|
380
|
|||
|
HYLQ-L-50
|
DIIBT1-4~dIICT1-6
|
50
|
3000
|
200
|
DN250
|
350
|
500
|
450
|
|||
|
HYLQ-L-100
|
DIIBT1-4~dIICT1-6
|
100
|
3100
|
200
|
DN300
|
350
|
600
|
580
|
|||
|
HYLQ-L-150
|
DIIBT1-4~dIICT1-6
|
150
|
3200
|
200
|
DN400
|
350
|
600
|
800
|
|||
|
HYLQ-L-200
|
DIIBT1-4~dIICT1-6
|
200
|
3300
|
200
|
DN450
|
350
|
700
|
950
|
|||
|
HYLQ-L-250
|
DIIBT1-4~dIICT1-6
|
250
|
3400
|
200
|
DN500
|
350
|
700
|
1200
|
|||
|
HYLQ-L-300
|
DIIBT1-4~dIICT1-6
|
300
|
3400
|
200
|
DN550
|
350
|
700
|
1450
|
|||
|
HYLQ-L-350
|
DIIBT1-4~dIICT1-6
|
350
|
3500
|
200
|
DN550
|
350
|
700
|
1550
|
|||
|
HYLQ-L-400
|
DIIBT1-4~dIICT1-6
|
400
|
3500
|
200
|
DN600
|
350
|
700
|
1680
|
|||
|
HYLQ-L-450
|
DIIBT1-4~dIICT1-6
|
450
|
3500
|
200
|
DN650
|
350
|
700
|
1800
|
|||
|
HYLQ-L-500
|
DIIBT1-4~dIICT1-6
|
500
|
3500
|
200
|
DN650
|
350
|
700
|
1900
|

示意圖